Birch • 3 Bedroom Modular Home Floor Plan

Charming modular home rendering of a small white house with a red door, front porch, and flower garden, surrounded by trees and greenery.
*Some exterior features shown and listed are optional. All features and options shown may not be available on all models. Please check with your Home Consultant for availability and pricing.

Floor Plan Details

1334

Square Feet

3

Bedrooms

2

Bathrooms

Request More Information

Name(Required)

Imagine Yourself Living In This Modular Home

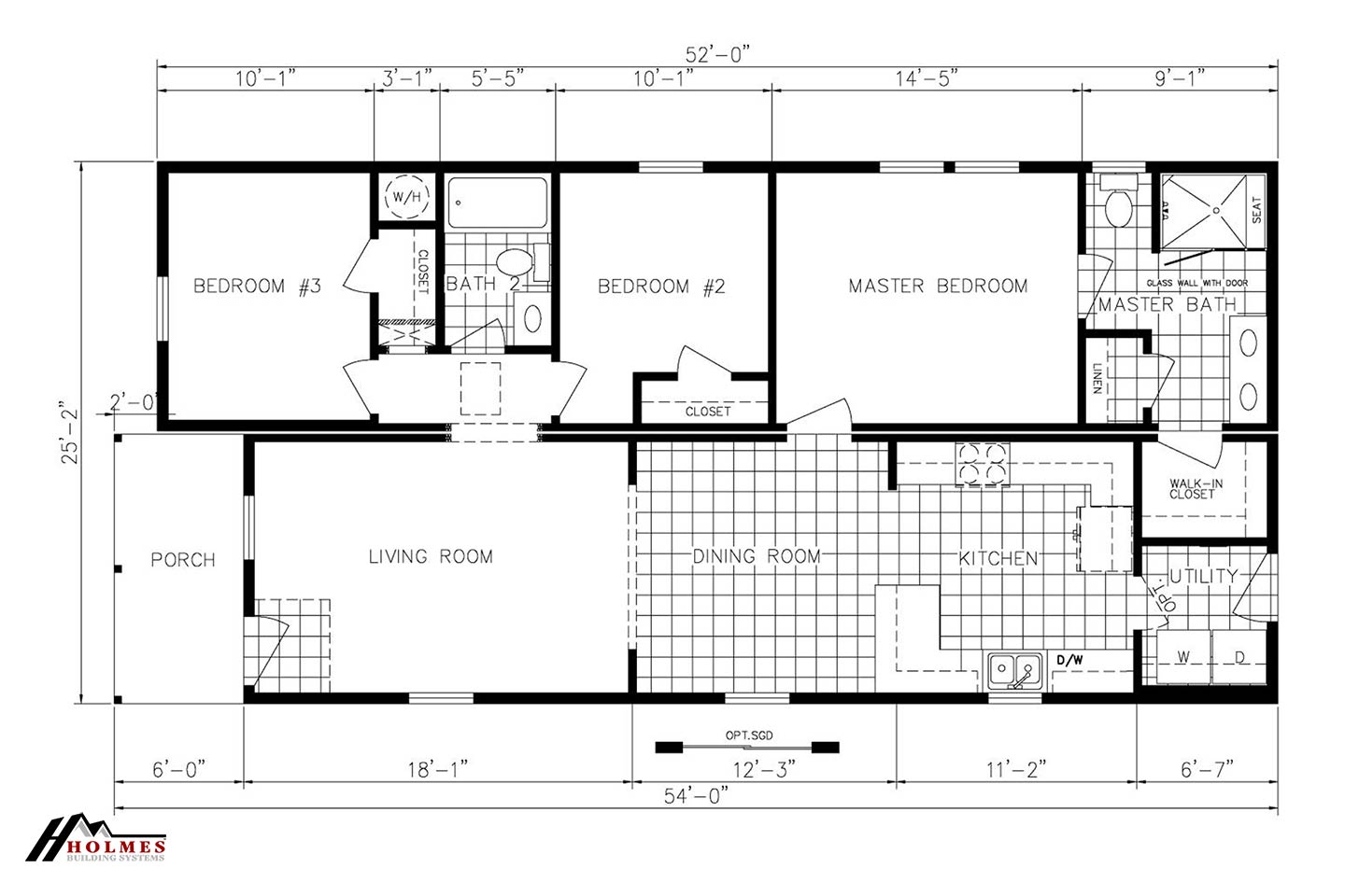
The Birch floor plan beautifully exemplifies practical living with its smart design. Ideal for families seeking comfort and convenience, this layout offers plenty of space and thoughtful details. Currently available in Whiteville, North Carolina, the Birch is designed to meet modern lifestyle needs. This floor plan combines efficiency and style, offering a harmonious blend of functionality and modern design that will cater to varying lifestyles.

The Birch features three bedrooms and two bathrooms, creating a space that is both welcoming and practical. The following features highlight what makes this home a top choice for families:

  • Expansive Living Room: Positioned at the front of the home, the living room offers a welcoming space to gather and relax. This area serves as the heart of the home, perfect for both entertainment and everyday living.
  • Spacious Kitchen and Dining Area: The kitchen seamlessly flows into the dining area, ensuring enjoyable family meals and hosting occasions. The layout promotes easy movement, enhancing the culinary experience.
  • Master Suite: The master bedroom includes an en-suite master bath and a walk-in closet, providing a private retreat. This feature allows for convenience and comfort, adding a touch of luxury to daily life.
  • Two Additional Bedrooms: Both bedrooms feature adequate closet space and easy access to the shared hall bathroom, making them ideal for children, guests, or home office use.
  • Utility Room: This dedicated space for laundry and utilities contributes to the home’s overall efficiency, helping maintain a tidy and organized environment.
  • Inviting Front Porch: The front porch offers a charming entrance and additional outdoor living area, perfect for enjoying relaxing mornings or evenings.

Families will appreciate the balance of private and communal spaces, each serving its distinctive function while still contributing to the whole. Whether it’s family dinners in the welcoming dining area or enjoying quiet moments in the cozy bedrooms, the Birch offers a setting where lasting home experiences are made.

The Birch floor plan also stands out due to its adaptability. No matter the size of the household, it’s designed for flexibility, easily accommodating changing needs over time. From young families just starting to seasoned homeowners seeking simplicity, its layout is crafted to enhance everyday life.

Don’t miss your opportunity to explore the Birch floor plan further. Imagine the possibilities that await with this inviting layout. For more information or to see how the Birch can be made to fit your family’s needs, reach out today. Discover a home where comfort and style meet practicality, perfectly tailored for your lifestyle.

Scroll to Top